Introducing: 83 MARKET ROAD, WERRIBEE & 42 MARGARET STREET, WERRIBEE
A truly rare offering presents itself with two properties backing onto each other — available to purchase INDIVIDUALLY or TOGETHER!
Combined land size: 1,394m² (approximately).
With scope to enhance or redevelop (STCA), either or both of these properties are ideal for homeowners, investors, or developers alike.
42 MARGARET STREET PROPERTY HIGHLIGHTS:
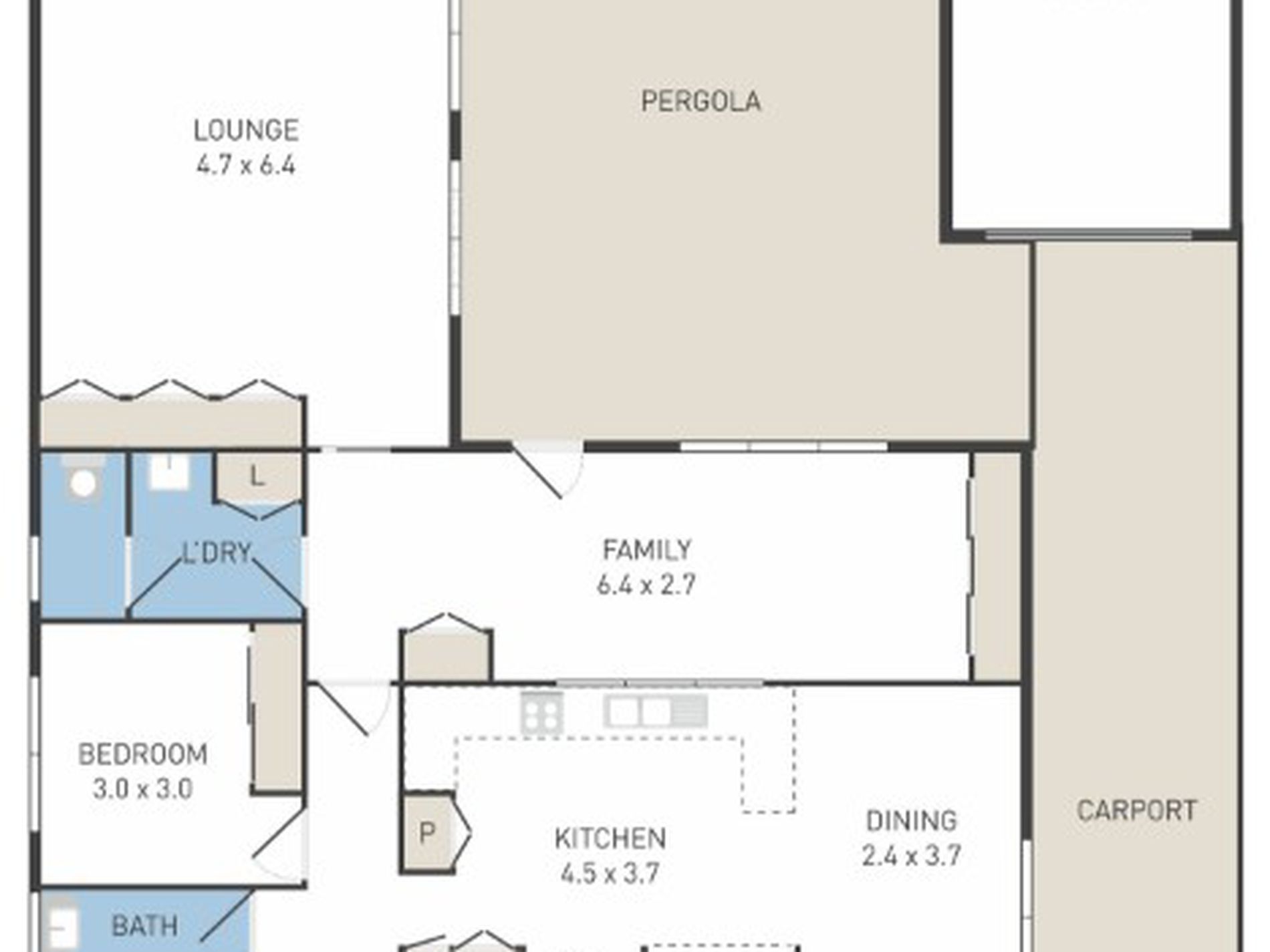
- Thoughtfully designed floorplan with timber flooring throughout the main living areas.
- Three generously sized, carpeted bedrooms.
- Three separate living zones, including: a cosy formal lounge; a spacious family room; an additional versatile room ideal as a study, kids’ retreat, or home office.
- Functional open-plan kitchen and dining area featuring gas cooking, dishwasher, ample bench and cupboard space.
- Central bathroom with separate bathtub and shower — perfect for families.
- Separate laundry for added convenience.
- Covered pergola area, ideal for outdoor entertaining.
- Set on a substantial 697m² (approx.) block
- Lease in place until 26 November 2026, renter currently paying $460 per week.
**PHOTOS OF FIRST PROPERTY SHOWN IN THIS ADVERTISEMENT ARE EXTERIOR AND INTERIOR SHOTS OF 83 MARKET ROAD.
** FLOORPLAN SHOWN IN THIS ADVERTISMENT IS OF 42 MARGARET STREET.
83 MARKET ROAD PROPERTY HIGHLIGHTS:
- Three well-proportioned bedrooms
- Central bathroom servicing the home
- Separate front living area with split system heating and cooling
- Spacious kitchen featuring ample storage and bench space
- Expansive backyard providing endless possibilities for outdoor use or future plans
- Central heating is currently not operational.
- Lease in place until 31 October 2026, renter currently paying $410 per week.
**PHOTOS OF SECOND PROPERTY SHOWN IN THIS ADVERTISEMENT ARE EXTERIOR AND INTERIOR SHOTS OF 83 MARKET ROAD.
Enjoy the convenience of a central location, just a short stroll to local shops, schools, transport, and all that Werribee has to offer. With ongoing development in the surrounding area, this is a location with a strong future.
Secure a single property or unlock the full potential of this unique dual-site offering — opportunities like this are rarely available.
From all of us at P Di Natale Real Estate, we wish you every success in your search for your new home. If you would like more detail on this property or to discuss one of the other properties we have available, please do not hesitate to call or email us.













































