EVER WANTED TO LIVE WHERE YOU WORK??
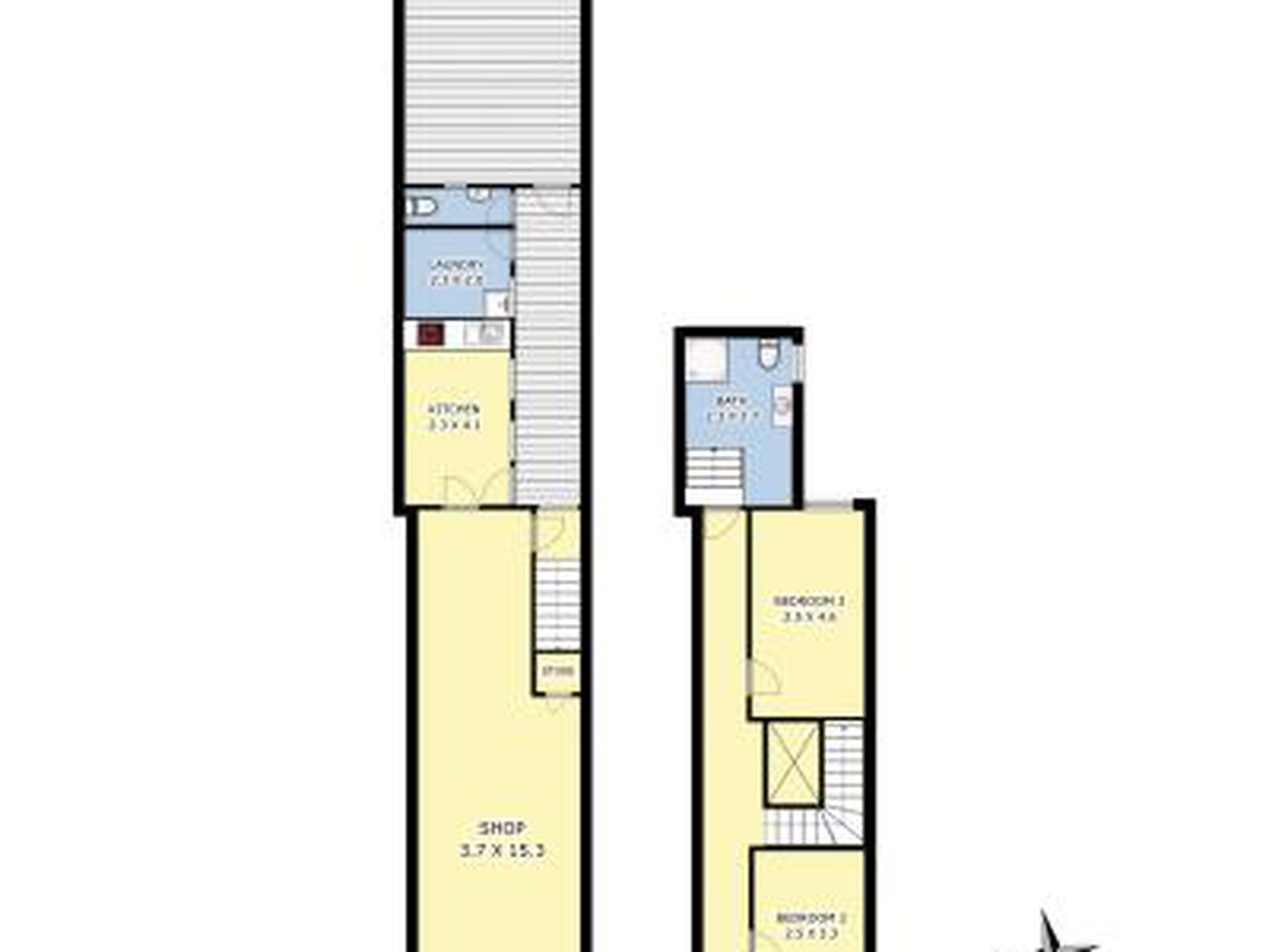
- Floor Area Approx - 156 sqm
- Ideal for retail or potential hospitality conversion (STCA)
- Secured upstairs residence (3 bedrooms with seperate bathroom)
- Excellent exposure & location in the heart of Barkly Street
- Secured rear access with minimum x 2 car spaces
- Negotiable Lease Terms
INSPECTION A MUST !!!!









